











Oppblåsbart trekk
Oppblåsbare tetnings deksler for åpne beholdere – levert av FabriQ
FabriQ Innovation AS, i samarbeid med Buitink Technology, tilbyr skreddersydde oppblåsbare deksler for containere og åpne beholdere. Disse løsningene benyttes når beholdere fylles med væske, bulk materialer eller annet innhold som må forsegles ovenfra – enten under lagring eller transport, for eksempel til sjøs.
Dekselet formes etter dine spesifikasjoner, og gir en fleksibel, lett og sikker løsning som eliminerer behovet for tunge og uhåndterlige metall-lokk.
Hvorfor velge et oppblåsbart deksel fra FabriQ?
-
Skreddersydd etter mål – passer enhver beholder, form og størrelse
-
Lett i vekt – typisk 2,5 til 5,5 kg/m²
-
Kompakt når sammenpakket – enkel transport og lagring
-
Sterk og fleksibel – deformeres ikke permanent under belastning
-
Sitter tett – de oppblåsbare kantene presses mot veggene for optimal forsegling
-
Motstandsdyktig mot vær, sjøvann og støt – ideelt for bruk til sjøs
-
Kan legges direkte på væske overflaten – holder seg på plass og begrenser væske bevegelse
-
Tilgjengelig i antistatiske og kjemikaliebestandige materialer
-
Kan også brukes som tradisjonell presenning når det ikke er oppblåst
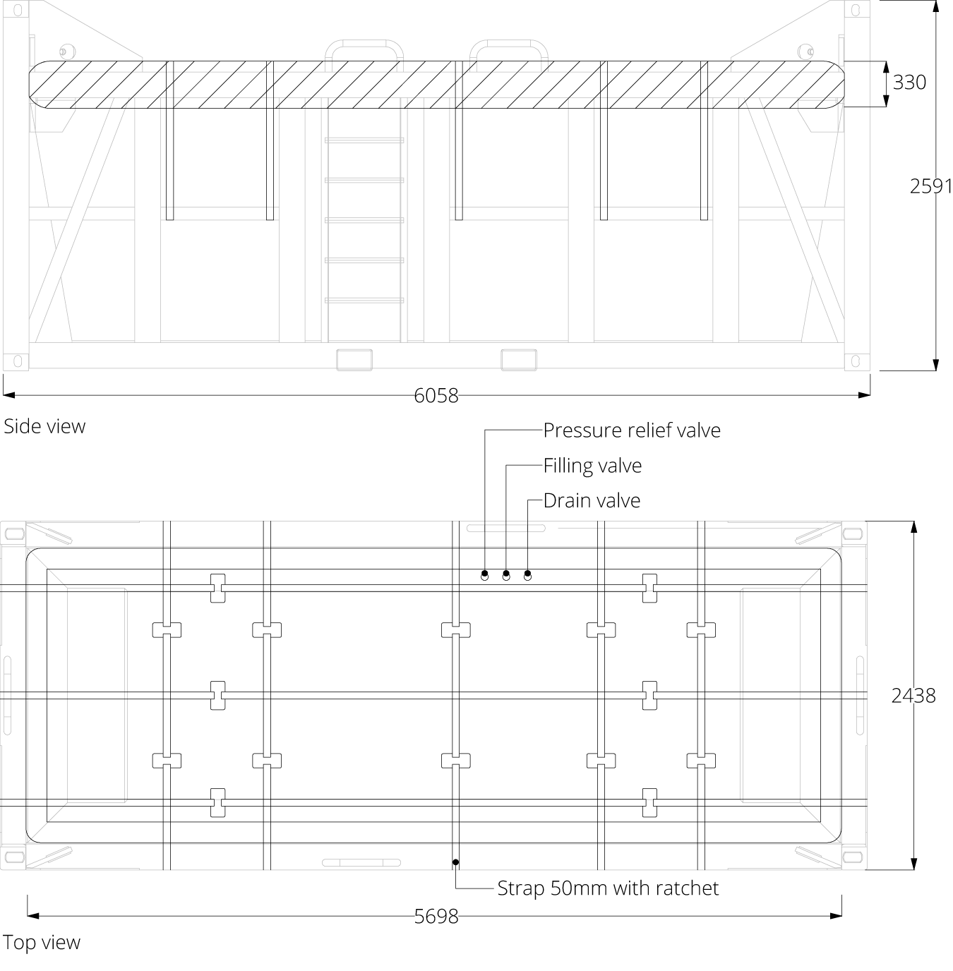
Typisk bruksområde: Tetting av containere med avløpsvann til sjøs
Oppblåsbare deksler benyttes blant annet for å forsegle containere fylt med forurenset vann til sjøs. I motsetning til ståldeksler – som ofte er tunge, vanskelige å håndtere og utsatt for deformasjon – gir de oppblåsbare dekslene en lett, tett og trygg løsning som tåler belastninger fra sjøgang og bevegelser om bord.
Tilpasning og materialvalg
Alle deksler utvikles og produseres internt hos Buitink Technology, i tett samarbeid med FabriQ. Du kan velge blant ulike:
-
Farger og tykkelser
-
Materialstyrker og stivhet
-
Tilpasninger for antistatisk, kjemikaliebestandig eller punkteringssikker bruk
-
Festeløsninger som stropper, kroker, tau, borrelås m.m.
Transport og montering
-
Leveres kompakt og klart til bruk
-
Enkel montering – kan installeres av én person
-
Krever ikke spesialverktøy eller høyt trykk
-
Kan fylles med luft via håndpumpe, elektrisk pumpe eller kompressor
-
Arbeidstrykk: opptil 1 bar (lavtrykkspute)
Vanlige spørsmål om oppblåsbare deksler
Hvilke mål må oppgis ved bestilling?
For spesialtilpassede deksler trenger vi de innvendige målene på containeren eller beholderen som skal forsegles. Standardmål for 20- og 40-fots containere har vi allerede.
Må dekselet være firkantet?
Nei. Vi kan produsere både rektangulære, runde, trekantede og kombinerte former – basert på målsatte tegninger eller skisser.
Hvordan fylles dekselet med luft?
Dekselet leveres med påfyllingsventil. Vi kan tilpasse ventilen etter hvilken pumpe, kompressor eller luftslange du benytter. Lavtrykksystem – maks. 1 bar.
Trenger jeg spesialpumpe?
Nei. En god håndpumpe er ofte tilstrekkelig. For raskere oppblåsing kan en elektrisk pumpe benyttes.
Har dekselet alltid samme tykkelse?
Standard tykkelse er ca. 30 cm, men vi tilbyr ulike høyder og trykkavhengige varianter tilpasset ditt behov.
Har du en spesifikk applikasjon eller container du ønsker å tette?
Ta kontakt med FabriQ Innovation AS, så finner vi riktig løsning for deg – raskt, skreddersydd og pålitelig.

Pris oppgis ved forespørsel
